发布需求

氢氧化镁气流粉碎机

价  格 
120000.00
品牌:
摩克立
型号:
QL40
空气耗量(L/min):
40
空气压力(kpa):
0.8
粉碎程度:
超细粉碎
单位能耗:
90
产量:
1000kg/h
装机功率(kw):
90KW
成品细度:
2um
入料粒度(mm):
小于15mm
工作原理:
气流剪切
山东摩克立粉体技术设备有限公司
店主:邓经理
地址:山东省潍坊市安丘经济开发区明湖北路21号
猜你喜欢
机械密封
¥5.00¥0.00
JXM系列冲击机械磨
¥0.00¥0.00
热销商品
  • 产品介绍

氢氧化镁粉体超细化成为热点问题,氢氧化镁阻燃剂的粒径越小,阻燃作用就越好。

由于随着氢氧化镁粉体粒径的减小,其比表面积会增大,表面性质也会发生改变,有助于改善商品的力学性能。因而,与其它路径相比,粒度超细化更有利于进步企业的市场竞争力。粉体粒度细化比其它加工路径更加简便,可以低成本生产高品位粉体,且商品更具通用性。

  高纯度氢氧化镁的超微粉碎一般用气流粉碎机,可轻易获得1-74微米范围内的超细粉。

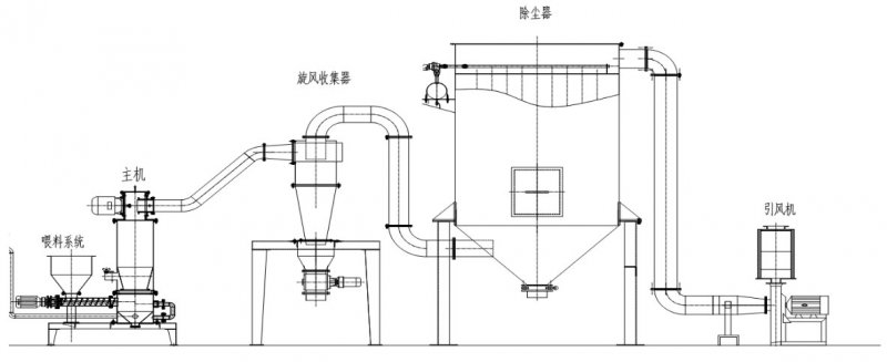
 氢氧化镁气流粉碎机,包括依次连接的料仓、气流粉碎装置、气流分级装置、旋风收集装置、除尘装置和引风机。气流粉碎装置的粉碎筒固定在支架上,粉碎筒外侧设有配气盘,配气盘通过输气管与空压机的压缩空气出口连接,压缩空气通过配气盘分配后供给喷孔与粉碎筒内腔连通的喷嘴,其特征在于:空压机进气口处设有空气过滤装置,该空气过滤装置包括壳体和滤芯,壳体和滤芯均为空心结构,壳体上端设有端盖,其下端设有出气口,端盖中心处开设进气口,滤芯设置在壳体内,其下端固定在壳体下底面上并与出气口同轴设置,该滤芯采用透气材料制成,滤芯外壁上由内向外依次包覆有滤网、过滤层和滤布,过滤层由至少一层滤纸沿滤芯外壁圆周方向折叠成首尾相接的环形褶皱组成,过滤纸上附着有活性炭颗粒。

        氢氧化镁气流粉碎机不仅粉碎精度高效率高,还安全环保,全封闭负压运行,作业场地无粉尘,非常适用于大型加工、连续化生产,目前已被广泛应用。

氢氧化镁气流粉碎机该装置的性能:

工作介质:常温压缩空气

工作压力:0. 7-1. 0MPa

工.作流量:20m./m~.n

生产能力:50-350kg/h

进料粒度:小于10mm

出料粒度:1-150um


我厂常温压缩空气为工质的气流粉碎装置的生产流程示意图。

气流粉碎机流程图 网站1.jpg

从空气压缩机出来的压缩空气,经后冷却器冷却后,进入油水分离器进行除油除水,然后进入空气干燥器中,气体经干燥后进入贮气罐。从贮气罐出来的台格干燥常温压缩空气,分二路进入对喷式气流粉碎机,物料经加料器进入粉碎机。粉碎后的物料进入离心分级器,分级后的不合格物料返回粉碎机,合格微细粉料进入高效旋风分离器。分离器下部经卸料锁气器下来的是成品,分离器上部出来的物料和度工质再进入布袋除尘器中,:捕集经卸料锁气器下来的产品,细度在6000目以上.废气*后经引风机排空。为了防止产品粘壁,在高效旋风分离器和布袋除尘器下料锥休体上,安装有振动器。

气流磨15.jpg



对比栏关闭